Fastkarm

T011 Fastkarm BUET profil
T012 Fastkarm BUET profil
T013 Fastkarm BUET profil
T011 Fastkarm RETT profil
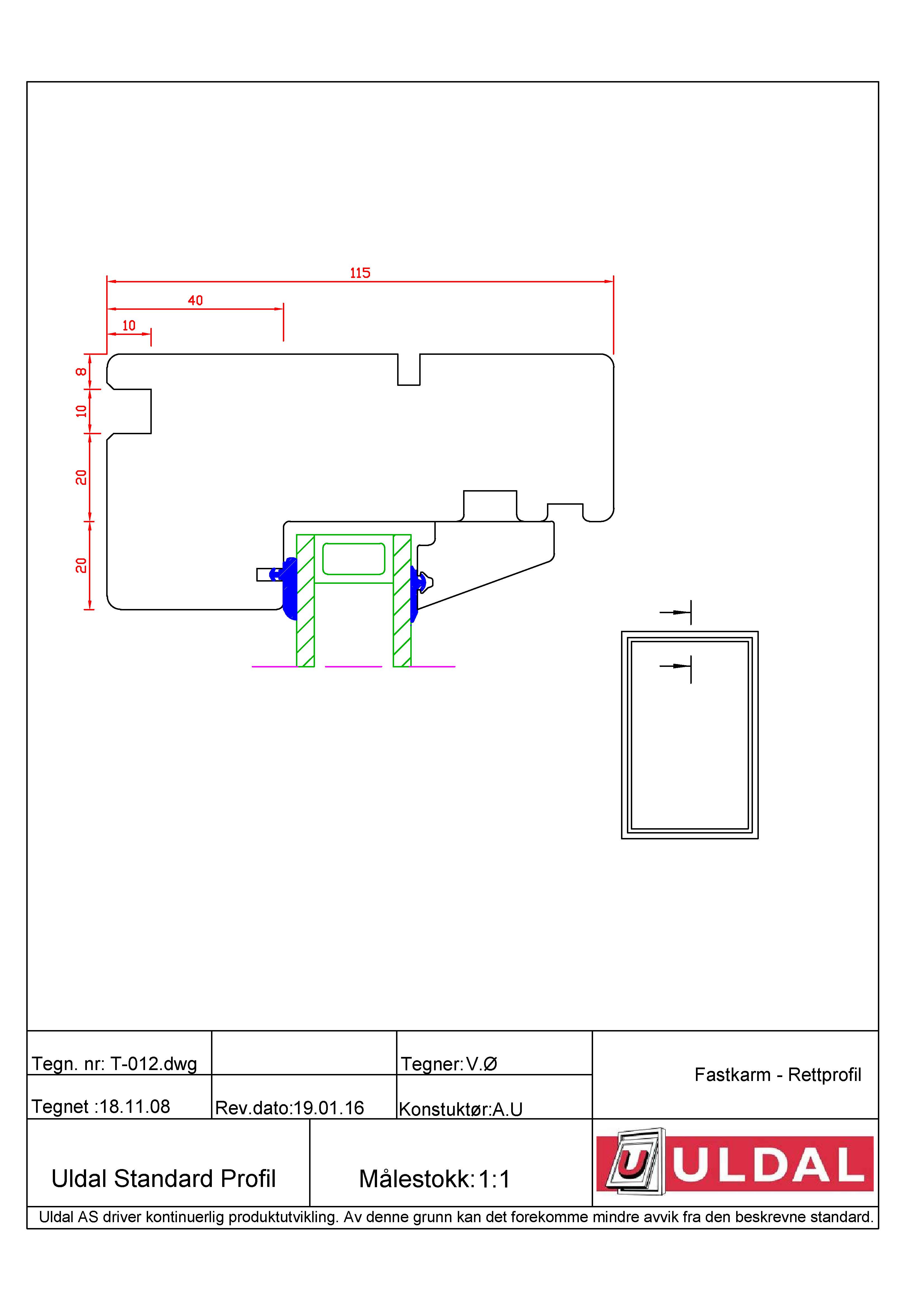
T012 Fastkarm RETT profil
T013 Fastkarm RETT profil